- Home
- Government
- Administration
- Broadband Portal
- Broadband permitting guide
Broadband permitting guide
Tuolumne County has created this guide to aid internet service providers (ISPs) in navigating the permitting process when building broadband infrastructure in the County. Our expectation is that grant funding will result in large projects that will need special attention in order to complete construction by mandated deadlines. The guide will lead you through the application process and provide information on state and County policies and statutes.
Table of contents
- Applying for encroachment permits
- CEQA exemptions for broadband infrastructure
- Encroachment permit informational package
- Pole requirements for aerial installations
- Dig Once policy
- Trenching requirements
Applying for encroachment permits
In the example below, we’ll look at how a fiber project might be prepared to make an online permit application go more smoothly.
Step 1: Prepare to apply
It’s incredibly beneficial to have detailed information before starting an application. This does not require having something as final as completed plot plans. Rather, take this opportunity to gather the information that will make a kickoff meeting most productive and help Public Works provide useful guidance, including:
- The proportions of the project that will involve different types of installations. An example might include 3.7 miles of directional boring, 7.8 miles of trenching and 13.2 miles of aerial (pole) installation.
- A breakdown of each road segment with linear footage will help us to alert you if any segments fall under the County’s Dig Once policy.
- Whether trenching will be in the middle of the road vs. on the shoulder.
- Maps of the project could be as simple as a boundary of the affected area(s), but providing high-level designs with road segments will allow the engineers on your project to provide more specific feedback. GIS files can also be useful.
- Trenching or aerial diagrams that meet County requirements.
- Your strategy for traffic plans, including following CalTrans standards for partial closures or providing detour plans for road closures that require public notice.
- Your strategy for permitting outside of the County rights of way. For example, if your project crosses a state freeway or federally-owned roads, you may also need permits from CalTrans or the U.S. Forest Service.
- Your strategy for environmental mitigation, including:
- If you plan on applying for a CEQA exemption from the state. Please note that a CEQA exemption does not eliminate NEPA requirements.
- If you plan on utilizing the County’s Program EIR, which provides CEQA and NEPA documents for rights of way on all county-owned and -maintained roads.
- If you expect to have a stormwater pollution prevention plan (SWPPP) from the Regional Water Quality Control Board to build in rainy weather.
Step 2: Request a kickoff meeting
This meeting will provide an opportunity to discuss your project before expending substantial effort on the application. Some tips to make it go smoothly:
- Request a meeting by emailing Public Works at pw@co.tuolumne.ca.us or reach out to the Director of Public Works.
- Share the information above a few days before the meeting so that it can be reviewed in advance.
- Come prepared with any questions about the application and review process (timing based on project size, etc.)
- Ask if a primary point of contact can be identified for the permit application. This is not always possible, but it can be helpful and streamline exchanges when modifications to an application are needed.
Step 3: Apply online
Now that you have the needed information to streamline your application, you can prepare your project plan for submittal. Here’s how the application process works:
1. Visit https://tuolumnecountyca.portal.opengov.com/ and log in or create an account if you don’t have one.
2. Search for and select “Encroachment permit application.”
3. Click "Apply online" on the next screen and you will be asked to confirm your contact information. Click next when this is complete.
4. Select "Point on a map" to select your location. Do not use "Address or parcel," which will automatically add the property owner to a notification list.
5. Once the map is open, drag it around to your project location and click once to add a point in the general area of your project. Then click "Confirm Selection." You can skip adding additional locations on the next screen.
6. Next, add some basic project information.
7. Then type in your name as the person authorizing/signing the application.
8. Upload all of the required plans that were discussed during your kickoff meeting. Make sure this is complete as omissions will create back-and-forth communication that can delay your permit approvals.
9. Once this is done, you will be able to review, confirm and submit your permit application.
10. Finally, once your application is submitted, you will be able to add notes for the engineer reviewing your application. Describe any changes to the application that arose from your kickoff meeting and how they help meet any permitting requirements. This will refresh the engineer's memory about your project and inform their review.
Additional useful information
CEQA exemptions for broadband infrastructure
The state enacted AB 156 in 2022, which provided a statutory exemption to CEQA requirements,. The full text of CEQA statues can be found in the 2023 CEQA Statues and Guidelines and the state also provides a Notice of Exemption form. The relevant statute is 21080.51:
(a) This division does not apply to a project funded by Item 7502-062-8506 of the Budget Act of 2021 or any entity, including a public entity or private or nonprofit corporation, that consists of linear broadband deployment in a right-of-way if the project meets all of the following conditions:
- The project is located in an area identified by the Public Utilities Commission as a component of the statewide open-access middle-mile broadband network pursuant to Section 11549.54 of the Government Code.
- The project is constructed along, or within 30-feet of, the right-of-way of any public road or highway.
- The project is either deployed underground where the surface area is restored to a condition existing before the project or placed aerially along an existing utility pole right-of-way.
- The project incorporates, as a condition of project approval, measures developed by the Public Utilities Commission or the Department of Transportation to address potential environmental impacts. At minimum, the project shall be required to include monitors during construction activities and measures to avoid or address impacts to cultural and biological resources.
- The project applicant agrees to comply with all conditions otherwise authorized by law, imposed by the planning department of a city or county as part of a local agency permit process, that are required to mitigate potential impacts of the proposed project, and to comply with the Keene-Nejedly California Wetlands Preservation Act (Chapter 7 (commencing with Section 5810) of Division 5), the California Endangered Species Act (Chapter 1.5 (commencing with Section 2050) of Division 3 of the Fish and Game Code), as applicable, other applicable state laws, and all applicable federal laws.
(b) If a project meets all of the requirements of subdivision (a), the person undertaking the project shall do all of the following:
- Notify, in writing, any affected public agency, including, but not limited to, any public agency having permit, land use, environmental, public health protection, or emergency response authority, of the exemption of the project pursuant to this section.
- Provide notice to the public in the area affected by the project in a manner consistent with subdivision (b) of Section 21108.
- In the case of private rights-of-way over private property, receive from the underlying property owner permission for access to the property.
- Comply with all conditions authorized by law imposed by the planning department of a city or county as part of any local agency permit process, that are required to mitigate potential impacts of the proposed project, and otherwise comply with the Keene-Nejedly California Wetlands Preservation Act (Chapter 7 (commencing with Section 5810) of Division 5), the California Endangered Species Act (Chapter 1.5 (commencing with Section 2050) of Division 3 of the Fish and Game Code), as applicable, other applicable state laws, and all applicable federal laws.
Encroachment permit application package
Any work for driveways, private road approaches, commercial road approaches, underground and aerial utility work, or any other kind of work performed within a County Road right-of-way requires an encroachment permit. This includes any tower, pole, poleline, pipe, pipeline, driveway, private road, fence, sign, stand or building, or any structure or object of any kind placed in, under or over any portion of the roadway.
The Public Works Department has prepared an application package to guide you through the process.
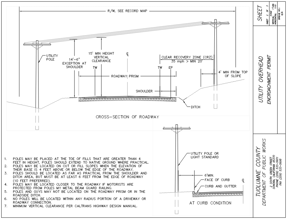
Pole requirements
The diagram below illustrates requirements for aerial installations.
Dig once policy
The County's policy addresses the general permit conditions and specifications for trench cuts and street resurfacing. It includes standard requirements relating to public safety, preservation of public property, site maintenance, materials and equipment, trenching and compaction, and insurance. It also includes detailed road resurfacing requirements in an attempt to protect county roads and road infrastructure from the effects of trench installation
This includes key street resurfacing policies that reflect the following scenarios:
- For roads repaved or resurfaced within the last three (3) years or for roads with a Pavement Condition Index (PCI) above 80, trenching is generally prohibited except under certain circumstances.
- For roads in good or fair condition (PCI between 50 and 80), the Permittee is required to either repave a minimum travel lane width or resurface the entire road width to restore the road to a pre-construction condition or better.
- For roads in poor condition (PCI less than 50), no additional pavement restoration efforts will be required.
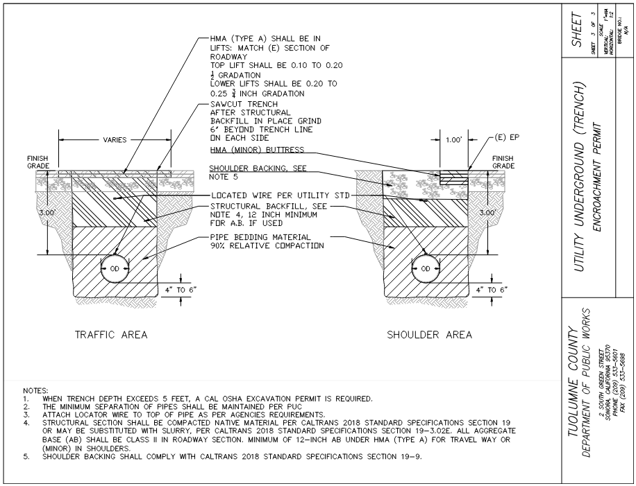
You can download the adopted Dig once Policy, as well as a list of Tuolumne County roads, which includes the corresponding PCI Index ratings. The trench diagram below details the requirements for underground utilities..